About
Work
Resume
Let's Connect
Welcome to my portfolio
About
Work
Resume
Let's Connect
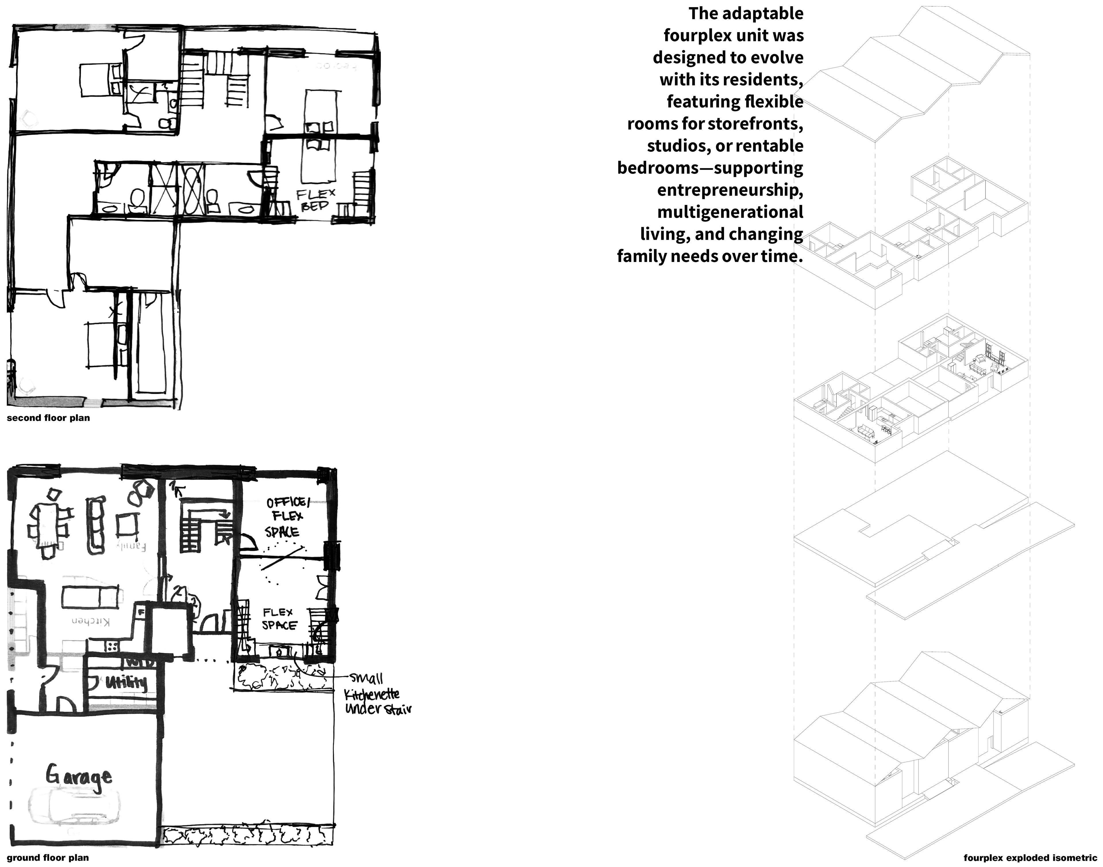
Fall 2025
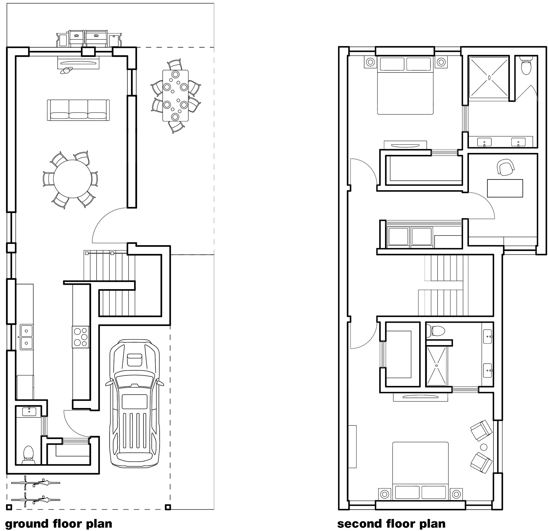
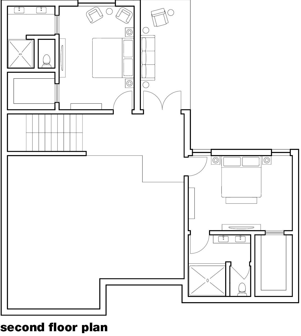
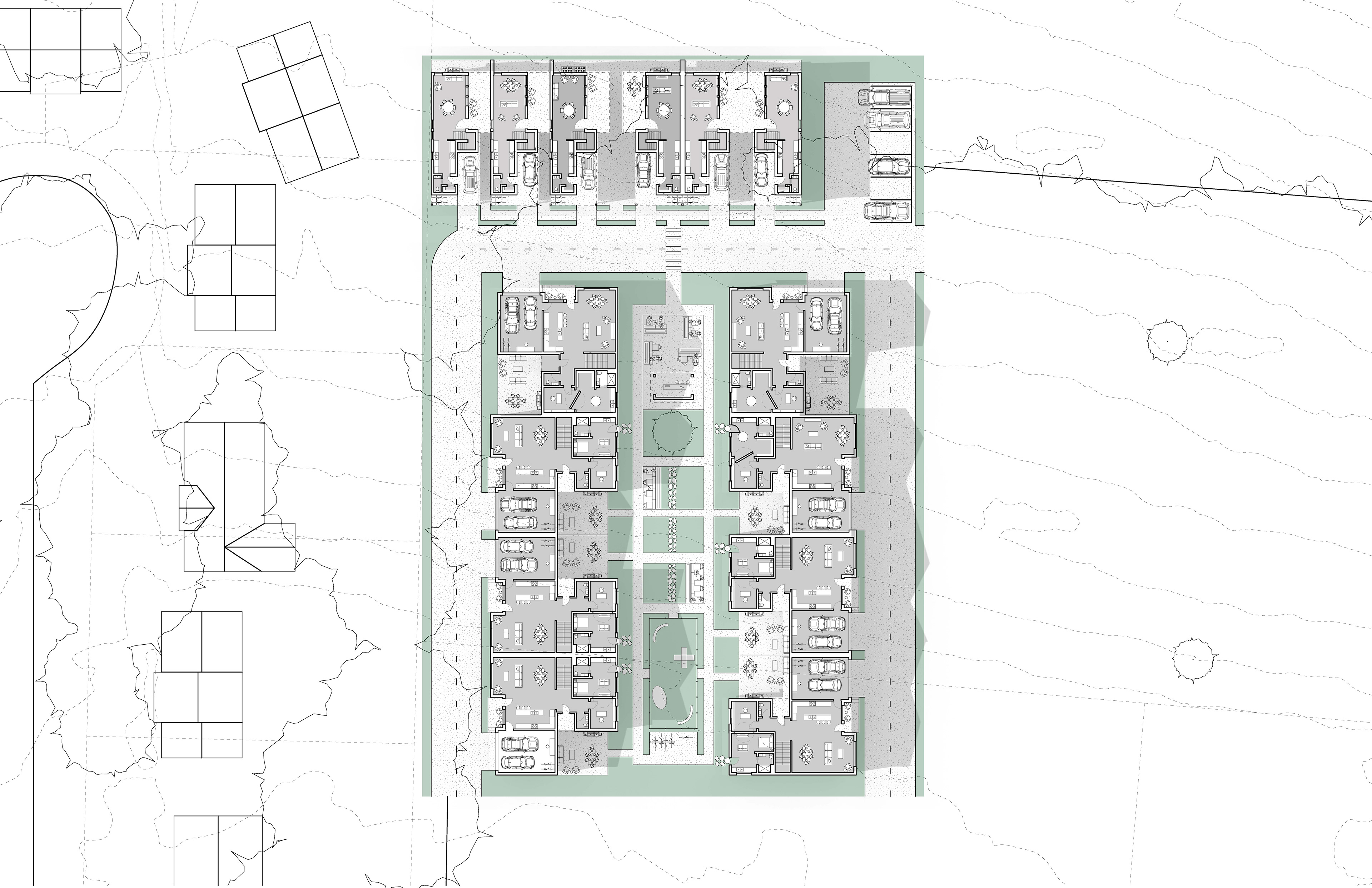
Inquiry 02 - Courtyard Community
Quadraplex Units
Two Bedroom Triplex Units
Three Bedroom Triplex Units
Site Analysis
Inquiry 01 - Finding Sense of Place
↑
Back to Top